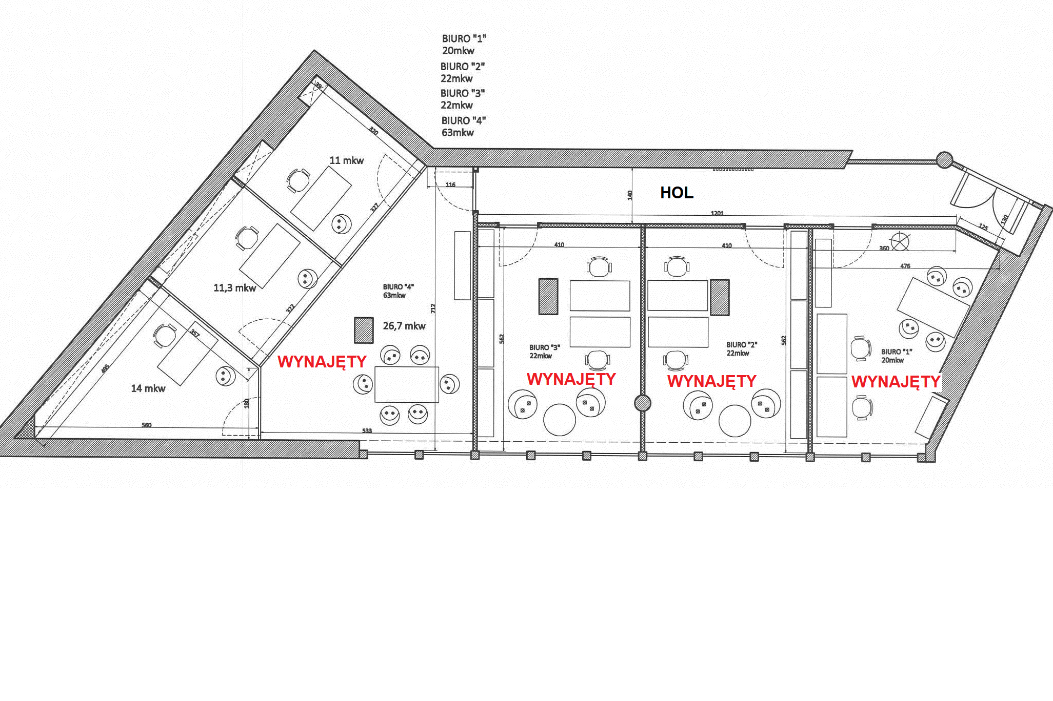
ul. Ks. Jana Niedziałka 13 Siedlce O inwestycji Oferta Lokalizacja Galeria O deweloperze O inwestycji Szczegółowe informacje pod numerem telefonu: 25 631-16-01 lub pod adresem e-mail: biuro@m3skorupka.pl Oferta Nr lokaluPiętroPowierzchnia (m2)PlanStatus 1Parter110.00 m2WYNAJĘTY 2I piętro151.00 m2WYNAJĘTE - lokale od ul. Ks. Jana Niedziałka 3I piętro82.45 m2WYNAJĘTY 4I piętro46.00 m2WYNAJĘTY 5III piętro226.00 m2WYNAJĘTY - lokal pod Restaurację + 51m2 taras Lokalizacja Galeria Formularz kontaktowy Zapraszamy do kontaktu telefonicznego, chętnie pomożemy znaleźć ci odpowiedni dom do twoich potrzeb. Oświadczam, że zapoznałem się z polityką prywatności. Δ